140方北欧极简 和熙名园设计

案例详情
140方北欧极简 和熙名园设计
方案说明
北欧风和现代主义风格设计构思。北欧风不单具有现代主义的简洁实用,更多了些亲和感与人情味,也是本案中最想表达的。空间必须明亮。感觉业主对于阴暗空间厌恨到了视若寇雠的地步。对于材料的环保性、节能设计上有着的追求
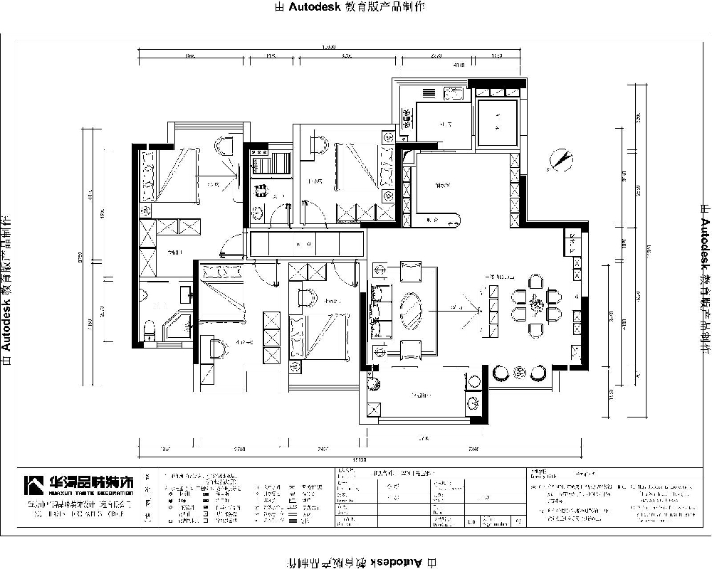
户型图
原始结构布置图


平面方案布置图
玄关
玄关设计

入户过道
客厅

客餐厅设计
卧室
主人房
次卧

小孩房
厨房

厨房
卫生间
淋浴房

140方北欧极简 和熙名园设计
方案说明
北欧风和现代主义风格设计构思。北欧风不单具有现代主义的简洁实用,更多了些亲和感与人情味,也是本案中最想表达的。空间必须明亮。感觉业主对于阴暗空间厌恨到了视若寇雠的地步。对于材料的环保性、节能设计上有着的追求
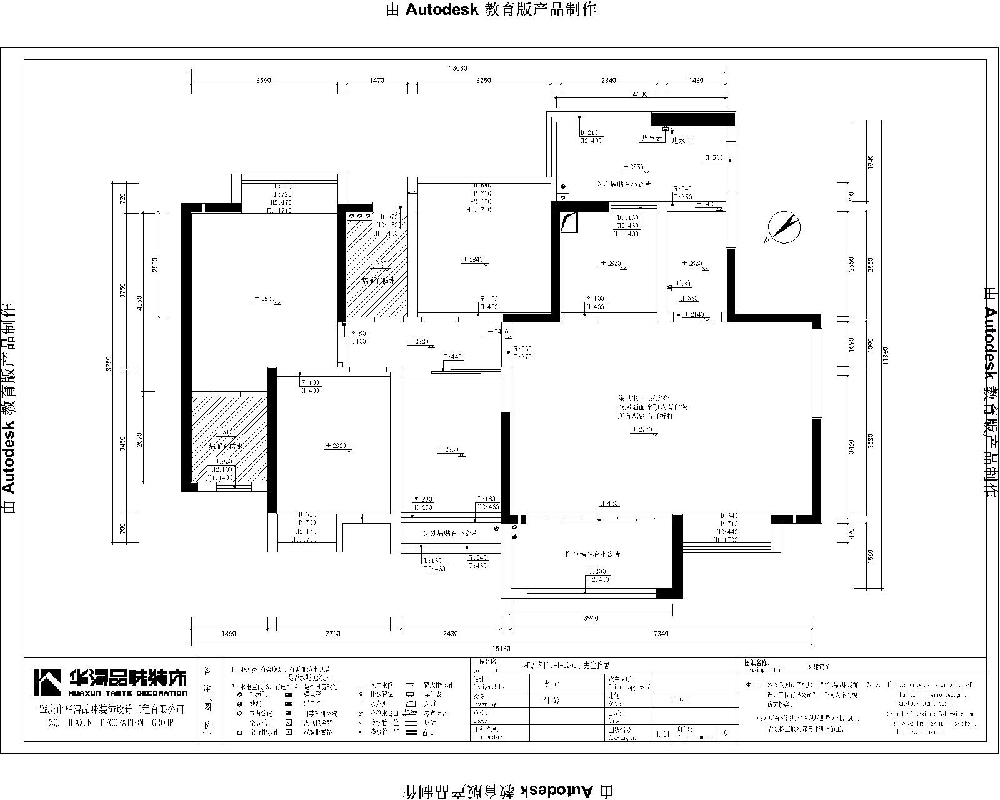
户型图
原始结构布置图


平面方案布置图
玄关设计

入户过道

客餐厅设计
主人房
次卧

小孩房

厨房
淋浴房