

案例展示
Case Show
时光洄游-法式中古
【设计理念】
以“轻法式中古”为叙事主线,焦糖玛奇朵色系为时光的温润载体,在全屋可可蛋奶色墙面的包裹下,勾勒一场空间与岁月的温柔对话。
【色彩体现】

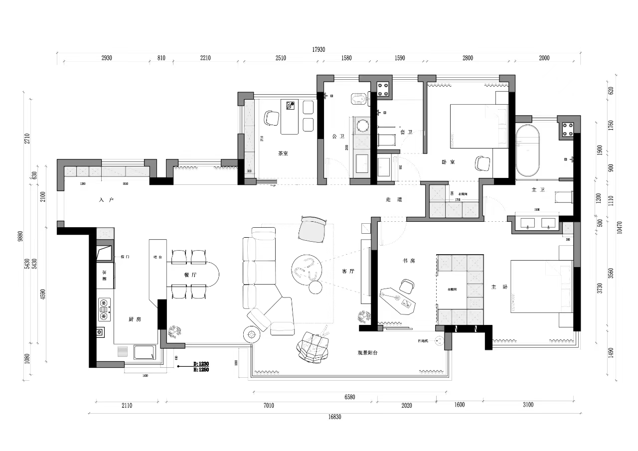
【平面布置图】

【实景案例赏析-玄关】

【实景案例赏析-厨房】


【实景案例赏析-餐厅】



【实景案例赏析-客厅】
鱼骨拼木纹砖镌刻岁月纹理,胡桃木雕花家具的温润与黑色金属的冷冽碰撞,白玻的通透、丝绒的慵懒、石膏线的克制,交织成复古与当代的叙事语言,如老唱片与电子乐的同频共振。以奶油白为时光画布,焦糖棕浸润家具与软装,橙色单椅跃动如咖啡表层的浮沫,黑白书柜如浓缩的底色,冷暖交织间,空间如一杯精心调配的玛奇朵,层次分明,余韵绵长。







【实景案例赏析-品茶区】
书房三联动法式玻璃门与客厅交融,茶桌墨香渗透社交场景,形成“私密—沉思—自然—互动”的闭环动线,如时光之河自由蜿蜒,模糊功能与时间的界限。



【实景案例赏析-阳台】

【实景案例赏析-主人房】
主卧“回字形衣帽间”串联睡眠区与工作区,白玻推拉门打破边界,直抵阳台



【实景案例赏析-次卧】




【实景案例赏析-公卫】

【实景案例赏析-套卫】



【实景案例赏析-主卫】




【实景案例赏析-细节图】





